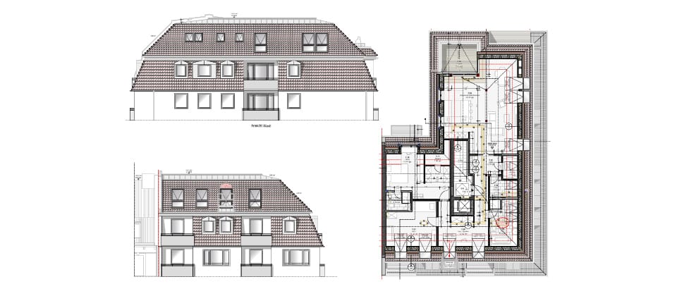
Thor35 - Thorwaldsenstraße 35

Dachgeschoss-Ausbau im Altbau

Bauherr
Plan Werk
Gesellschaft für Wohnbau mbH

Nutzungsart
Wohnen

Lage
Thorwaldsenstraße 35
80335 München

Zeitraum
2017

Wohnfläche Fläche
ca. 130m²